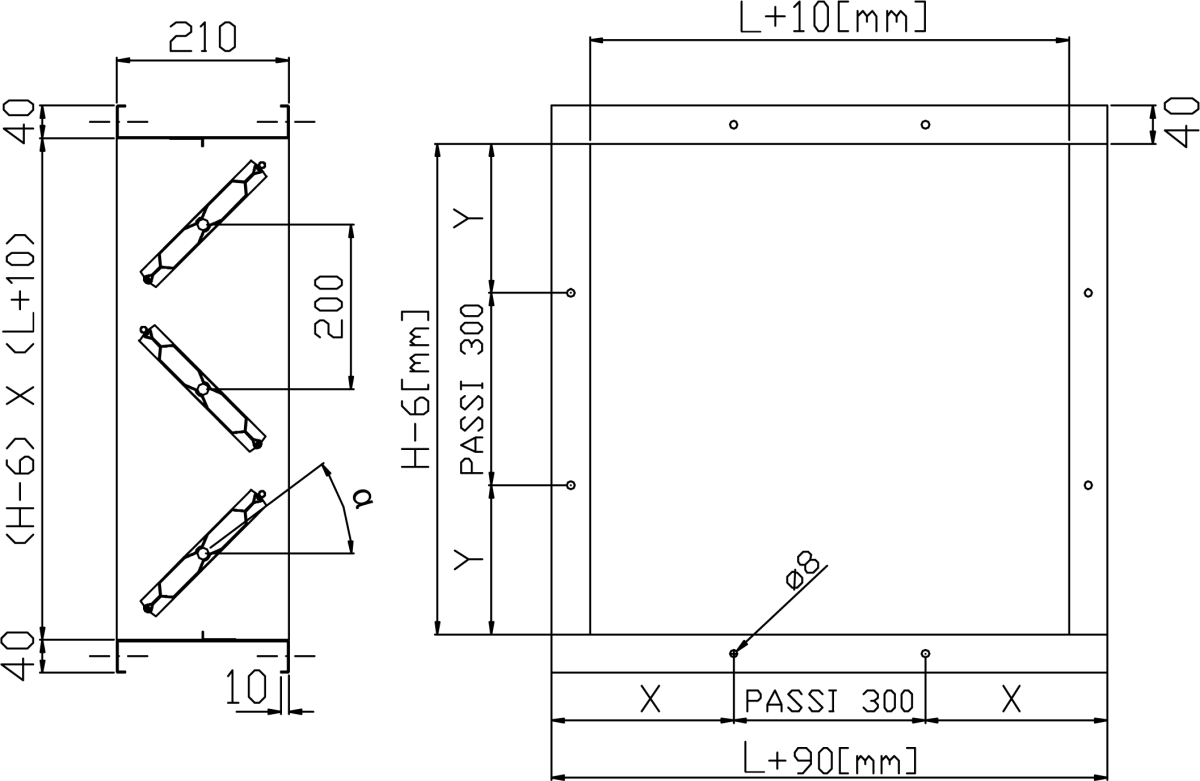
ERT200T Serrande di regolazione a tenuta in acciaio zincato passo 200 mm.
Descrizione
Serrande di regolazione con movimento delle alette tramite ingranaggi posti all'esterno del flusso dell'aria e speciali guarnizioni sulle alette in grado di garantire una classe di tenuta 4 secondo la norma EN 1751.
Caratteristiche
- Telaio in acciaio zincato 15/10;
- alette tamburate con speciale profilo per l'alloggiamento delle guarnizioni, in lamiera d'acciaio zincata, spessore 0,8+0,8 mm;
- passo alette 200 mm;
- levismi esterni per il comando della serranda;
- boccole in bronzo;
- perni di comando ø18 mm zincati;
- tenuta laterale con lamelle in inox e singola tenuta su ogni aletta.
- alette tamburate con speciale profilo per l'alloggiamento delle guarnizioni, in lamiera d'acciaio zincata, spessore 0,8+0,8 mm;
- passo alette 200 mm;
- levismi esterni per il comando della serranda;
- boccole in bronzo;
- perni di comando ø18 mm zincati;
- tenuta laterale con lamelle in inox e singola tenuta su ogni aletta.
A richiesta
- Con comando manuale R12;
- versione in AISI 304;
- servomotore elettrico.
- versione in AISI 304;
- servomotore elettrico.
Caratteristiche dimensionali
| L | N° Fori Ø 8 mm | X |
| 200 | 1 | 140 |
| 300 | 1 | 190 |
| 400 | 2 | 90 |
| 500 | 2 | 140 |
| 600 | 2 | 190 |
| 700 | 3 | 90 |
| 800 | 3 | 140 |
| 900 | 3 | 190 |
| 1000 | 4 | 90 |
| 1100 | 4 | 140 |
| 1200 | 4 | 190 |
| 1300 | 5 | 90 |
| 1400 | 5 | 140 |
| 1500 | 5 | 190 |
| H | N° Fori Ø 8 mm | Y |
| 210 | 0 | 0 |
| 410 | 1 | 205 |
| 610 | 1 | 305 |
| 810 | 2 | 255 |
| 1010 | 3 | 205 |
| 1210 | 3 | 305 |
| 1410 | 4 | 255 |
| 1610 | 5 | 205 |
| 1810 | 5 | 305 |
| 2010 | 6 | 255 |
Perdita di carico e rumore generato
V: velocità di attraversamento (m/s).
Δpt [Pa]: perdite di carico in Pascal.
LwA [dB(A)]: indice di rumorosità.
α: angolo di apertura della serranda di regolazione, 0° le alette sono completamente aperte.
*Velocità sconsigliata.
| Vk (m/s) | α 0° | α 30° | α 60° | |||
| Δpt [Pa] | LwA [dB(A)] | Δpt [Pa] | LwA [dB(A)] | Δpt [Pa] | LwA [dB(A)] | |
| 1 | < 5 | < 20 | 6 | 32 | 130 | 49 |
| 2 | < 5 | 23 | 23 | 49 | 520 | 69 |
| 3 | < 5 | 34 | 52 | 58 | 1185 | 16 |
| 4 | < 5 | 42 | 94 | 66 | 1350 | 83 |
| 5 | < 5 | 48 | 145 | 71 | > 1500* | 87 |
| 6 | < 5 | 53 | 215 | 75 | > 1500* | 92 |
Coppia di rotazione necessaria per l'apertura e chiusura della serranda
| Superficie [m2] | Servomotore | |
| CON ritorno a molla [Nm] | SENZA ritorno a molla [Nm] | |
| < 0,20 | 20 | 10 |
| < 1,50 | 30 | 20 |
| < 2,20 | 40 | 40 |
| < 3,00 | 60 | 40 |
| < 4,00 | - | 80 |
Listino prezzi
| H | L | |||||||||||||
| 200 | 300 | 400 | 500 | 600 | 700 | 800 | 900 | 1000 | 1100 | 1200 | 1300 | 1400 | 1500 | |
| euro | euro | euro | euro | euro | euro | euro | euro | euro | euro | euro | euro | euro | euro | |
| 210 | a.r. | a.r. | a.r. | a.r. | a.r. | a.r. | a.r. | a.r. | a.r. | a.r. | a.r. | a.r. | a.r. | a.r. |
| 410 | a.r. | a.r. | a.r. | a.r. | a.r. | a.r. | a.r. | a.r. | a.r. | a.r. | a.r. | a.r. | a.r. | a.r. |
| 610 | a.r. | a.r. | a.r. | a.r. | a.r. | a.r. | a.r. | a.r. | a.r. | a.r. | a.r. | a.r. | a.r. | a.r. |
| 810 | a.r. | a.r. | a.r. | a.r. | a.r. | a.r. | a.r. | a.r. | a.r. | a.r. | a.r. | a.r. | a.r. | a.r. |
| 1010 | a.r. | a.r. | a.r. | a.r. | a.r. | a.r. | a.r. | a.r. | a.r. | a.r. | a.r. | a.r. | a.r. | a.r. |
| 1210 | a.r. | a.r. | a.r. | a.r. | a.r. | a.r. | a.r. | a.r. | a.r. | a.r. | a.r. | a.r. | a.r. | a.r. |
| 1410 | a.r. | a.r. | a.r. | a.r. | a.r. | a.r. | a.r. | a.r. | a.r. | a.r. | a.r. | a.r. | a.r. | a.r. |
| 1610 | a.r. | a.r. | a.r. | a.r. | a.r. | a.r. | a.r. | a.r. | a.r. | a.r. | a.r. | a.r. | a.r. | a.r. |
| 1810 | a.r. | a.r. | a.r. | a.r. | a.r. | a.r. | a.r. | a.r. | a.r. | a.r. | a.r. | a.r. | a.r. | a.r. |
| 2010 | a.r. | a.r. | a.r. | a.r. | a.r. | a.r. | a.r. | a.r. | a.r. | a.r. | a.r. | a.r. | a.r. | a.r. |
Comando manuale
| Descrizione | € |
| Comando manuale R12 perno ø 18mm | a.r. |