EGA6 Griglie di ripresa in alluminio passo 25 con filtro
Descrizione
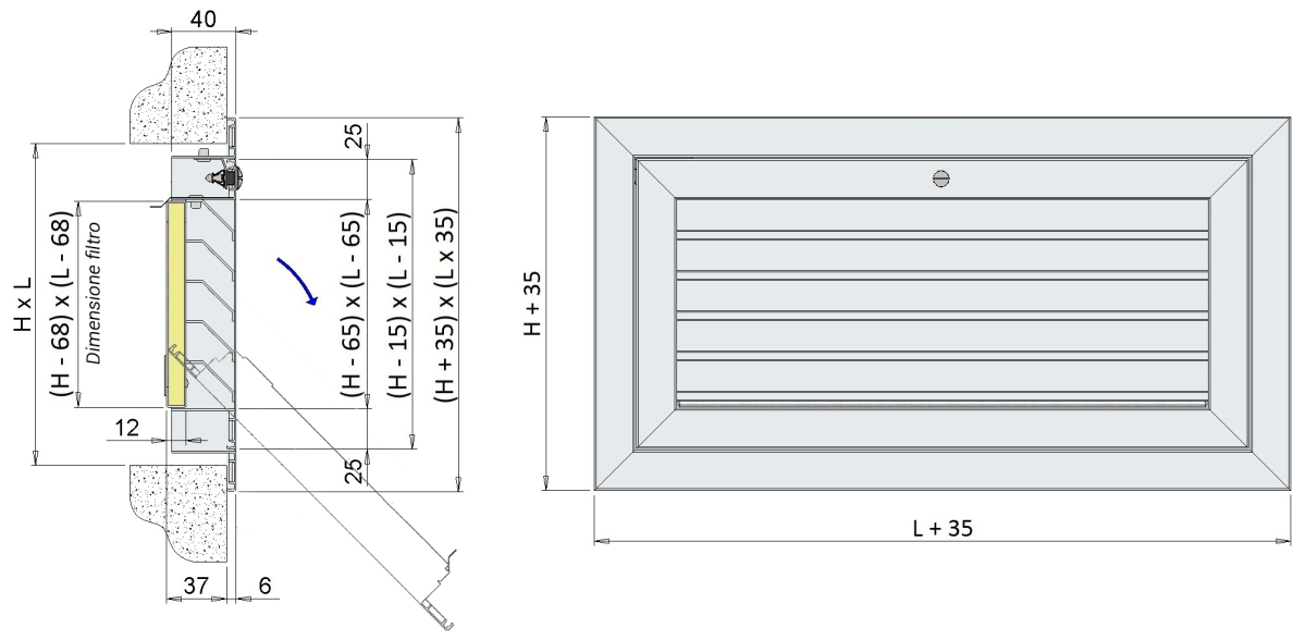
Griglie per ripresa dell'aria costruite con alette orizzontali fisse ed inclinate a 45°, con doppia cornice ad apertura a cerniere che rende agevole l’alloggiamento e la sostituzione del filtro.
Caratteristiche
Materiale: alluminio.
Finitura: anodizzato naturale.
Filtro: classe COARSE (G2) spessore 12 mm.
Chiusura: mediante vite.
Finitura: anodizzato naturale.
Filtro: classe COARSE (G2) spessore 12 mm.
Chiusura: mediante vite.
Installazione
L'installazione viene eseguita fissando il telaio esterno della griglia al muro mediante viti.
Impiego
Griglie per la ripresa dell'aria esterna o in ambiente dove sia consigliata una pre-filtrazione di polvere.
Perdita di carico iniziale inferiore a 40 Pa con velocità di 1,5 m/s sul filtro.
Perdita di carico iniziale inferiore a 40 Pa con velocità di 1,5 m/s sul filtro.
Accessori
- EPZ plenum zincato;
- EPI plenum isolato.
- EPI plenum isolato.
A richiesta
Chiusura con calamite o con sistema push-pull.
Sezione efficace
| H | L | ||||||
| 200 | 300 | 400 | 500 | 600 | 800 | 1000 | |
| sezione efficace della griglia m2 | |||||||
| 200 | 0,009 | 0,016 | 0,020 | 0,027 | 0,033 | 0,044 | 0,058 |
| 300 | 0,015 | 0,026 | 0,036 | 0,047 | 0,057 | 0,077 | 0,098 |
| 400 | 0,022 | 0,037 | 0,053 | 0,069 | 0,084 | 0,114 | 0,145 |
| 500 | 0,026 | 0,047 | 0,066 | 0,087 | 0,107 | 0,146 | 0,183 |
| 600 | 0,033 | 0,057 | 0,083 | 0,107 | 0,130 | 0,177 | 0,226 |
| 800 | 0,044 | 0,077 | 0,110 | 0,143 | 0,177 | 0,242 | 0,309 |
| 1000 | 0,057 | 0,102 | 0,144 | 0,187 | 0,229 | 0,313 | 0,391 |
Dati di funzionamento
m³/h: portata
Pa: perdite di carico in Pascal
dB(A): indice di rumorosità
Si consiglia la velocità dell'aria sul filtro di 1,5 m/s per contenere le perdite di carico e mantenere l'efficienza di filtrazione;
i dati di portata in tabella si riferiscono alla griglia con il filtro.
Tutte le dimensioni sono espresse in mm
| H | V m/s | L | ||||||
| 200 | 300 | 400 | 500 | 600 | 800 | 1000 | ||
| Velocità frontale sul filtro | portata m3/h | |||||||
| 200 | 1,5 | 63 | 121 | 180 | 238 | 296 | 413 | 530 |
| 2 | 84 | 162 | 240 | 317 | 395 | 551 | 706 | |
| 300 | 1,5 | 121 | 234 | 346 | 458 | 571 | 795 | 1020 |
| 2 | 162 | 312 | 461 | 611 | 761 | 1060 | 1360 | |
| 400 | 1,5 | 180 | 346 | 512 | 679 | 845 | 1178 | 1510 |
| 2 | 240 | 461 | 683 | 905 | 1127 | 1570 | 2014 | |
| 500 | 1,5 | 238 | 458 | 679 | 899 | 1119 | 1560 | 2000 |
| 2 | 317 | 611 | 905 | 1199 | 1492 | 2080 | 2667 | |
| 600 | 1,5 | 296 | 571 | 845 | 1119 | 1394 | 1942 | 2491 |
| 2 | 395 | 761 | 1127 | 1492 | 1858 | 2590 | 3321 | |
| 800 | 1,5 | 413 | 795 | 1178 | 1560 | 1942 | 2707 | 3471 |
| 2 | 551 | 1060 | 1570 | 2080 | 2590 | 3609 | 4629 | |
| 1000 | 1,5 | 530 | 1020 | 1510 | 2000 | 2491 | 3471 | 4452 |
| 2 | 706 | 1360 | 2014 | 2667 | 3321 | 4629 | 5936 | |
Indice di rumorosità dB(A)
| V m/s | dB(A) |
| 1,5 | 32/38 |
| 2 | 39/45 |
Perdita di carico (Pa)
| V m/s | Pa |
| 1,5 | 35/38 |
| 2 | 62/68 |
Plenum
Tutte le misure sono espresse in mm.
| Modello L1 x H1 | Stacco Superiore | Stacco Laterale | E | F | Modello L1 x H1 | Stacco Superiore | Stacco Laterale | E | F | ||||||||
| P1 | Nr. Stacchi | Ø d | P2 | Nr. Stacchi | Ø d | P1 | Nr. Stacchi | Ø d | P2 | Nr. Stacchi | Ø d | ||||||
| 200x200 | 200 | 1 | 198 | 300 | 1 | 198 | 80 | 12 | 500x300 | 200 | 1 | 248 | 350 | 1 | 248 | 80 | 12 |
| 300x200 | 200 | 1 | 198 | 300 | 1 | 198 | 80 | 12 | 600x300 | 200 | 2 | 198 | 350 | 2 | 248 | 80 | 12 |
| 400x200 | 200 | 1 | 198 | 300 | 1 | 198 | 80 | 12 | 800x300 | 200 | 2 | 248 | 350 | 2 | 248 | 80 | 12 |
| 500x200 | 200 | 1 | 198 | 300 | 1 | 198 | 80 | 12 | 1000x300 | 200 | 2 | 248 | 350 | 2 | 248 | 80 | 12 |
| 600x200 | 200 | 2 | 198 | 300 | 2 | 198 | 80 | 12 | 400x400 | 200 | 1 | 298 | 350 | 1 | 298 | 80 | 12 |
| 800x200 | 200 | 2 | 198 | 300 | 2 | 198 | 80 | 12 | 500x400 | 200 | 1 | 298 | 350 | 1 | 298 | 80 | 12 |
| 1000x200 | 200 | 2 | 198 | 300 | 2 | 198 | 80 | 12 | 600x400 | 200 | 2 | 198 | 350 | 2 | 248 | 80 | 12 |
| 300x300 | 200 | 1 | 248 | 350 | 1 | 248 | 80 | 12 | 800x400 | 200 | 2 | 298 | 350 | 2 | 298 | 80 | 12 |
| 400x300 | 200 | 1 | 248 | 350 | 1 | 248 | 80 | 12 | 1000x400 | 200 | 2 | 298 | 400 | 2 | 298 | 80 | 12 |
Listino prezzi
Verniciato bianco RAL 9016 +20%
| H | L | ||||||
| 200 | 300 | 400 | 500 | 600 | 800 | 1000 | |
| euro | euro | euro | euro | euro | euro | euro | |
| 200 | 66,09 | 69,68 | 78,61 | 91,12 | 107,19 | 116,26 | 139,36 |
| 300 | 69,68 | 73,26 | 86,00 | 100,02 | 126,58 | 146,41 | 172,18 |
| 400 | 80,13 | 92,92 | 101,12 | 126,67 | 146,50 | 179,05 | 203,47 |
| 500 | 96,47 | 105,06 | 125,05 | 148,78 | 173,25 | 203,47 | 242,24 |
| 600 | 105,06 | 120,78 | 143,82 | 162,56 | 195,31 | 233,65 | 265,89 |
| 800 | 122,55 | 140,88 | 167,79 | 189,64 | 227,83 | 272,57 | 310,15 |
Plenum
| Dimensioni | Stacco Superiore | Stacco Laterale | ||
| EPZ - Plenum Zincato | EPI Plenum Isolato | EPZ - Plenum Zincato | EPI Plenum Isolato | |
| L1xH1 | euro | euro | euro | euro |
| 200x200 | 34,24 | 47,08 | 37,85 | 51,92 |
| 300x200 | 37,16 | 50,99 | 41,70 | 57,07 |
| 400x200 | 40,12 | 54,95 | 45,50 | 62,18 |
| 500x200 | 43,04 | 58,91 | 49,34 | 67,29 |
| 600x200 | 59,99 | 78,09 | 71,98 | 92,00 |
| 800x200 | 70,71 | 90,27 | 79,62 | 102,30 |
| 1000x200 | 76,59 | 98,19 | 76,59 | 112,52 |
| 300x300 | 41,20 | 56,14 | 49,27 | 67,06 |
| 400x300 | 55,34 | 71,90 | 64,75 | 84,54 |
| 500x300 | 58,72 | 76,43 | 69,44 | 90,88 |
| 600x300 | 69,52 | 88,69 | 77,59 | 99,53 |
| 800x300 | 84,97 | 112,40 | 99,72 | 132,19 |
| 1000x300 | 91,73 | 121,47 | 109,14 | 144,80 |
| 400x400 | 59,76 | 77,70 | 74,09 | 96,96 |
| 500x400 | 63,60 | 82,78 | 79,70 | 104,45 |
| 600x400 | 82,31 | 108,98 | 91,23 | 121,01 |
| 800x400 | 99,26 | 128,97 | 115,32 | 150,49 |
| 1000x400 | 117,67 | 153,18 | 142,65 | 186,69 |